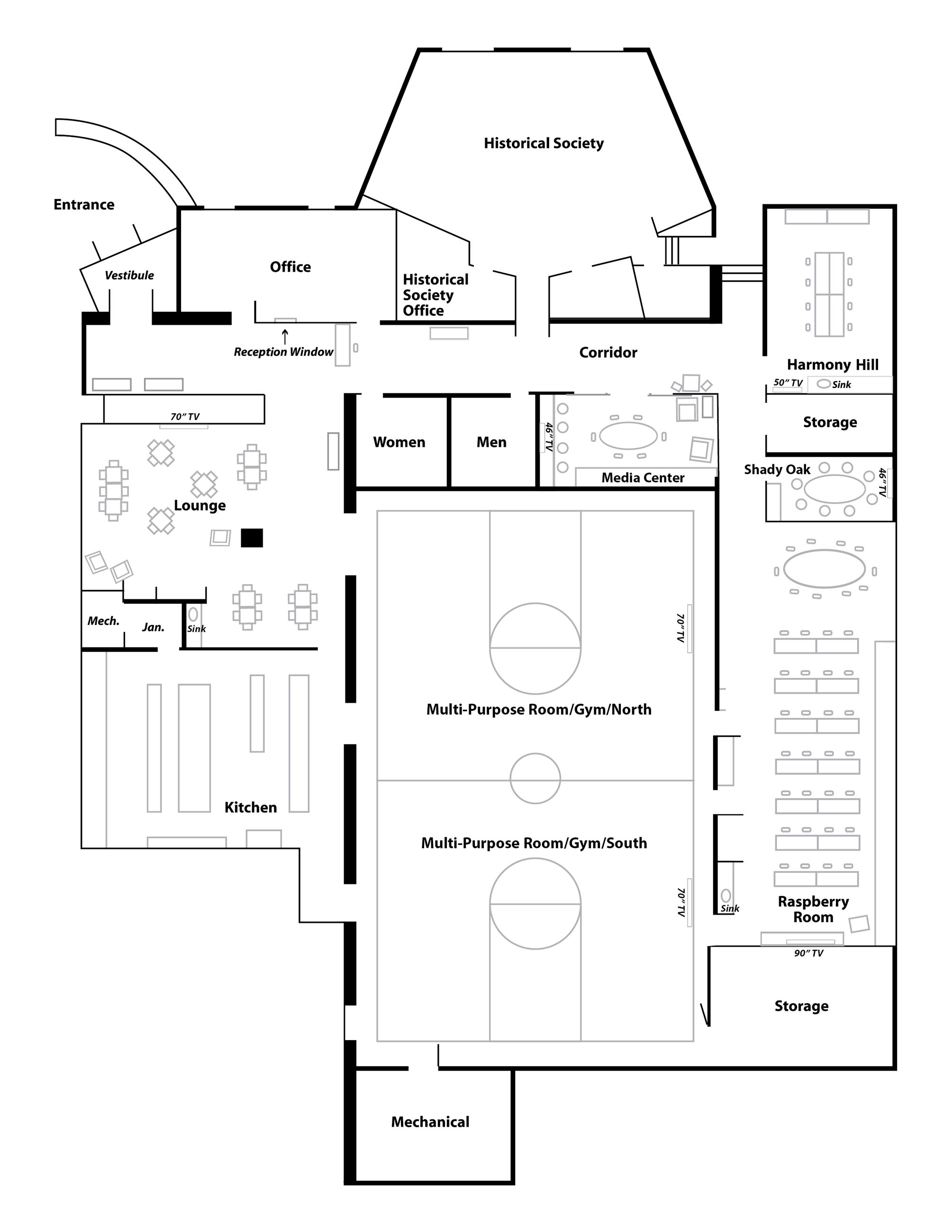
Available Rooms

Harmony Hill

  • 6 conference tables 2 feet by 6 feet
  • 24 chairs
  • Multi-purpose rubber floor
  • Sink/counter area
  • Television monitor 50 inches

Kitchen

  • Convection oven (electric)
  • Oven/Stovetop (electric)
  • Refrigerator/freezer
  • Serving and prep counters
  • Serving carts
  • Sinks

Lounge

  • 3 overstuffed chairs
  • 11 square tables
  • 38 chairs
  • Sink/counter area
  • Television monitor 70 inches

Media Center

  • 8 cloth chairs
  • 2 Overstuffed chairs
  • Oval table 6 feet
  • Media counter with computer
  • Television monitor 50 inches

Multi-Purpose Gym

  • 4,000 square feet wood floor
  • Capacity 150 people 
  • 2 Pickleball courts
  • 2 Television monitors 70 inches
  • Basketball court
  • Public Address System
  • Volleyball court

Raspberry Room

  • 14 tables* 2 feet by 6 feet
  • 40 cloth chairs*
  • Capacity: 40 people lecture seating, 28 classroom seating
  • Sink/counter area
  • Television monitor 90 inches with internet
  • *Additional tables and chairs available

Shady Oak

  • 8 conference chairs
  • Oval table 6 feet
  • Counter area
  • Television monitor 50 inches 

View larger version of map (PDF)

facility-map